Káli ház
A Káli fantázianevű típusház ideális választás 1–2 gyermekes családok számára, akik tágas, jól átgondolt és modern otthont keresnek.
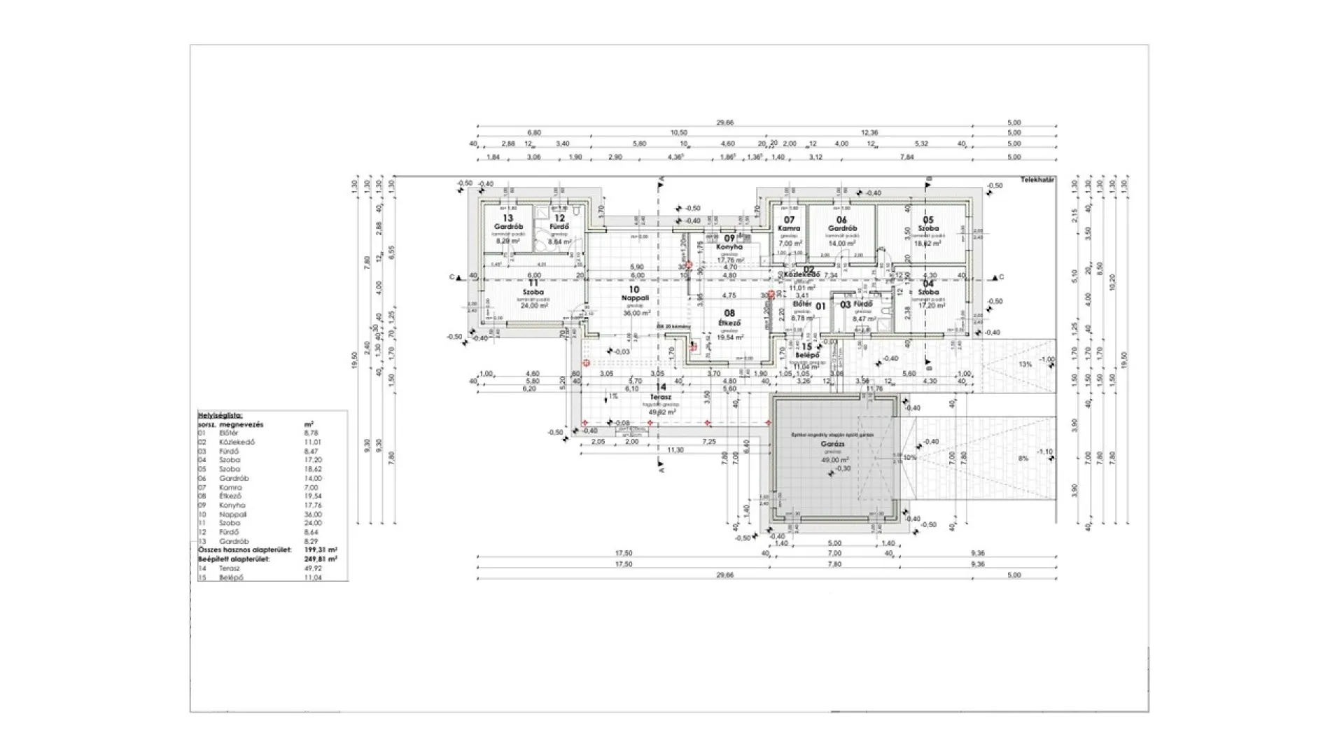
A ház bruttó 249,81 m² beépített területtel és nettó 199,31 m² hasznos alapterülettel rendelkezik, nappali + 3 szobás kialakítással, amely kényelmes és jól elkülöníthető élettereket biztosít.
Az átgondolt alaprajz optimális térkihasználást tesz lehetővé, így a közösségi és privát terek egyensúlya hosszú távon is élhető környezetet biztosít.
Igény esetén a ház nettó 49,92 m²-es fedett terasszal is bővíthető, amely tovább növeli az otthon komfortját és használati értékét.
Felár ellenében nettó 49,00 m²-es dupla garázzsal is kérhető, amely tovább növeli a mindennapi használat kényelmét.
A Káli típusház ideális választás mindazok számára, akik tágas, modern családi házat szeretnének, és fontos számukra a kiszámítható költség és a pontos kivitelezés.
ÁRAK, MŰSZAKI TARTALOM
- szerkezetkész77,78
millió Ft
- külső kulcsrakész99,04
millió Ft
- fűtéskész131,57
millió Ft
- kulcsrakész155,40
millió Ft
Szerkezetkész állapot
Előkészítő munkák:
- geodéziai felmérés
- sávalap kitűzése
- sávalap ásás és földkiemelés (kitermelt föld deponálásával)
Sávalap az alábbi rétegrend szerint:
- sávalap 90 cm mély x 50 cm széles, vasalt, mixer betonnal
- 1 sor Leier 30-as zsalukő, vasalt, mixer betonnal
- 20 cm vastag, víz- és fagyálló XPS lábazati hőszigetelés (U értéke = 0,17 W/m²K)
- 15 cm vastag homokos kavicságy tömörítve
- 12 cm vastag beton vasháló erősítéssel
- csatorna alapszerelés PVC csőrendszerrel
- víz alapszerelés KPE csövekkel
- 2 db erősáramú földkábeles betáplálás (normál és H tarifa) a mérőhelyig
Falak:
- 20 cm vastag Leier kéregfal (260 cm belmagasság), kitöltve mixer betonnal
- vasbeton gerenda a tervek szerint
- 10 cm vastag Leiertherm válaszfalak
- Leier áthidalók
- elektromos kiállások helyének kialakítása, gégecsövezés és dobozolás a falazatban
- elektromos nyomvonalak előkészítése a tervdokumentáció szerint
- vízvezetékek horonymarásai a Leier falakban
Tető:
- CNC technológiával készült ácsolt tetőszerkezet
- tető kialakítás a tervek szerint, legfeljebb 30 fokos tetőhajlásszögig
- ereszkinyúlás a tervek szerint, legfeljebb 50 cm-ig
- tetőhéjalás, Leier Toscana Classic betoncseréppel (választható téglavörös, mogyoró, antracit, carbon színben)
- bádogos szerkezetek, ereszcsatornák a tetőhéjalás színével megegyező színben
Igény esetén más cserépmárka is választható egyedi árazással.
E-napló vezetés.
A ház szerkezetkész ára: 77 780 000 Ft + 5% Áfa
Az ár tartalmazza a változtatás nélküli tervadaptáció teljes költségét!
A jelenlegi árak tájékoztató jellegűek, hivatalos ajánlat személyes egyeztetés után.
A műszaki tartalom nem tartalmazza, felár ellenében elérhető:
- tervmódosítás, egyedi tervezés
- lemezalap
- Leier Mesterpanel födém, klímafödém
- 30 foknál nagyobb tetőhajlásszög
- Leier LSK kémény, kandalló
- garázs kivitelezése
- teraszok kivitelezése
- pergola és kocsibeálló
- térkövezés, járdaépítés
- kerítés és kapu kivitelezése
- automata tolókapu vagy szekcionált kapu, kapumotor
- kertépítés (tereprendezés, termőföld, füvesítés, növénytelepítés)
- automata öntözőrendszer telepítése
- házkörüli drénrendszer kialakítása kavics szivárgóval
- külső világítási rendszer
- vízlágyító (berendezés)
- riasztórendszer (komplett rendszer)
- okosotthon-rendszer (komplett rendszer)
- napelemrendszer (komplett rendszer, inverterrel és tárolóval)
- elektromosautó-töltőpont (komplett rendszer)
- medence kivitelezése
Külső kulcsrakész állapot
Külső nyílászárók:
- Veka Softline 76 MD, 6 légkamrás, 3 rétegű üvegezésű műanyag ablakok (Uw értéke = 0,80 W/m²K)
- fehér színű nyílászárók, választható szín felár ellenében
- 1 db bukó-toló teraszajtó az alapárban
- 1 db bejárati ajtó, kilinccsel (bruttó 300 000 Ft-ig)
- fehér színű műanyag ablakpárkányok, választható szín felár ellenében
- külső árnyékolástechnikai megoldások (pl. redőny, szúnyogháló) igény szerint, felár ellenében választhatók
Igény esetén fa nyílászárók, műkő párkányok és különféle árnyékoló rendszerek is választhatók egyedi árazással.
Külső villanyszerelési előkészítés:
- a tervdokumentáció szerinti kültéri dugaljak, kapcsolók és világítási kiállások előkészítése gégecsövezéssel
- további kültéri kiállások igény szerint, felár ellenében kialakíthatók
Hőszigetelés:
- 20 cm vastag grafitos homlokzati hőszigetelés, Baumit rendszerben (U értéke = 0,15 W/m²K)
Külső felületképzés:
- homlokzat világos, egyszínű Baumit nemesvakolat, 1,5 mm szemcsenagysággal
- igény szerint Baumit egyszínű lábazati dekorvakolat
Többszínű vakolás, kőburkolat és egyéb homlokzati díszítőelemek felár ellenében választhatók.
E-napló vezetés.
A ház külső kulcsrakész ára: 99 040 000 Ft + 5% Áfa
Az ár tartalmazza a változtatás nélküli tervadaptáció teljes költségét!
A jelenlegi árak tájékoztató jellegűek, hivatalos ajánlat személyes egyeztetés után.
A műszaki tartalom nem tartalmazza, felár ellenében elérhető:
- tervmódosítás, egyedi tervezés
- lemezalap
- Leier Mesterpanel födém, klímafödém
- 30 foknál nagyobb tetőhajlásszög
- Leier LSK kémény, kandalló
- garázs kivitelezése
- teraszok kivitelezése
- pergola és kocsibeálló
- térkövezés, járdaépítés
- kerítés és kapu kivitelezése
- automata tolókapu vagy szekcionált kapu, kapumotor
- kertépítés (tereprendezés, termőföld, füvesítés, növénytelepítés)
- automata öntözőrendszer telepítése
- házkörüli drénrendszer kialakítása kavics szivárgóval
- külső világítási rendszer
- vízlágyító (berendezés)
- riasztórendszer (komplett rendszer)
- okosotthon-rendszer (komplett rendszer)
- napelemrendszer (komplett rendszer, inverterrel és tárolóval)
- elektromosautó-töltőpont (komplett rendszer)
- medence kivitelezése
Fűtéskész állapot
Aljzat:
- 12 cm vastag lépésálló EPS szigetelés
- 5-6 cm vastag úsztatott aljzatbeton
- aljzatkiegyenlítés önterülő aljzatkiegyenlítővel
Padlószerkezet hőátbocsátási tényező várható U értéke = 0,23 W/m²K
Födém:
- gyalulatlan deszka borítás a teljes födémen
- 30 cm kőzetgyapot hőszigetelés
- gipszkarton álmennyezet, 1 réteg normál gipszkarton; vizes helyiségekben 1 réteg vízálló (impregnált) gipszkarton
- 1 db lenyíló, falétrás padlásfeljáró (bruttó 100 000 Ft-ig)
Födémszerkezet hőátbocsátási tényező várható U értéke = 0,12 W/m²K
Belső villanyszerelés – komplett rendszer kiépítése:
- vezetékek behúzása a gégecsövekbe a végpontokig
- elektromos elosztótábla beépítése és bekötése
- 1 db mennyezeti lámpa kiállás minden helyiségben (szerelvények nélkül)
- napelemrendszer, riasztórendszer, elektromos redőny előkészítése
- elektromos hálózat rákötése a mérőórára
Víz- és szennyvízhálózat kiépítése:
- csap- és lefolyóhálózat kialakítása
- vízlágyító berendezés fogadására alkalmas gépészeti előkészítés (helyigény, csatlakozási pontok biztosítása)
- rákötés az ivóvízhálózatra és a szennyvízcsatornára (mérőórákra)
Fűtés:
- Midea levegő-víz hőszivattyús padlófűtés rendszer, a hőveszteség-számítás szerinti teljesítménnyel, beüzemeléssel együtt
Igény esetén alternatív hőtermelő rendszerek is választhatók egyedi árazással.
Használati melegvíz:
- 100-150 literes, különálló energiahatékony használati melegvíz-készítő rendszer, a ház méretéhez és rendeltetéséhez igazított kapacitással, beüzemeléssel együtt
Szellőztetés:
- helyiségenként telepített, automata vezérlésű, hővisszanyerős szellőztető berendezések a tervdokumentáció szerint
E-napló vezetés.
A ház fűtéskész ára: 131 570 000 Ft + 5% Áfa
Az ár tartalmazza a változtatás nélküli tervadaptáció teljes költségét!
A jelenlegi árak tájékoztató jellegűek, hivatalos ajánlat személyes egyeztetés után.
A műszaki tartalom nem tartalmazza, felár ellenében elérhető:
- tervmódosítás, egyedi tervezés
- lemezalap
- Leier Mesterpanel födém, klímafödém
- 30 foknál nagyobb tetőhajlásszög
- Leier LSK kémény, kandalló
- garázs kivitelezése
- teraszok kivitelezése
- pergola és kocsibeálló
- térkövezés, járdaépítés
- kerítés és kapu kivitelezése
- automata tolókapu vagy szekcionált kapu, kapumotor
- kertépítés (tereprendezés, termőföld, füvesítés, növénytelepítés)
- automata öntözőrendszer telepítése
- házkörüli drénrendszer kialakítása kavics szivárgóval
- külső világítási rendszer
- vízlágyító (berendezés)
- riasztórendszer (komplett rendszer)
- okosotthon-rendszer (komplett rendszer)
- napelemrendszer (komplett rendszer, inverterrel és tárolóval)
- elektromosautó-töltőpont (komplett rendszer)
- medence kivitelezése
Kulcsrakész állapot
Belső villanyszerelés - szerelvényezés és beüzemelés:
- kapcsolók és dugaljak felszerelése
- a lakóépület helyiségeihez és funkcióihoz igazodó elektromos rendszer átadása, amely 120 db elektromos kiállást, valamint 4 db UTP adat- és 4 db TV kiállást tartalmaz; a végleges mennyiség a tervdokumentáció szerint kerül meghatározásra, igény esetén felár ellenében bővíthető
- 2 db mennyezeti WiFi Access Point előkészítés
- szerelvények egyszínű fehér színben (Legrand vagy Schneider)
Víz- és szennyvíz szerelvényezés:
- szaniterek beépítése és szerelvényezése
Szaniterek:
- Geberit Duofix Basic beépített tartályos vagy monoblokkos WC, komplett szettben (bruttó 120 000 Ft/db-ig)
- kerámia mosdók (bruttó 50 000 Ft/db-ig)
- króm csaptelepek (bruttó 40 000 Ft/db-ig)
- kád vagy zuhanykabin szerelvényekkel (bruttó 150 000 Ft/db-ig)
Igény esetén épített zuhanykabin üvegfallal vagy ajtóval, egyedi árazással.
Belső felületképzés:
- 10 cm vastag Leiertherm válaszfalak kétoldali mész-cement vakolattal, kétszeri gletteléssel Q2 minőségben, kétszeri fehér festéssel
- 20 cm vastag Leier kéregfal szerkezet, kétszeri gletteléssel Q2 minőségben, kétszeri fehér festéssel
- fürdőszobában, különálló WC-ben, háztartási helyiségben és kamrában 210 cm-ig kerámia falburkolat-rendszer (bruttó 12 000 Ft/m²-ig)
- függesztett gipszkarton álmennyezet bandázsolása, kétszeri glettelés Q2 minőségben, kétszeri fehér festés
Színes festés, tapétázás és egyedi belső kialakítások felár ellenében választhatók.
Padlóburkolás:
- szobákban, nappaliban, étkezőben és egyéb nem vizes helyiségekben 8-12 mm-es Diego vízálló laminált padlóburkolat-rendszer, 30 éves rendszergaranciával (bruttó 10 000 Ft/m²-ig)
- fürdőben, WC-ben és egyéb vizes helyiségekben kerámia padlóburkolat-rendszer (bruttó 12 000 Ft/m²-ig)
A megadott árkategórián felüli burkolatok és egyedi igények egyedi árazással választhatók.
Beltéri ajtók:
- szabadon választható beltéri ajtók, kilinccsel (bruttó 120 000 Ft/db-ig)
E-napló vezetés.
A ház kulcsrakész ára: 155 400 000 Ft + 5% Áfa
Az ár tartalmazza a változtatás nélküli tervadaptáció teljes költségét!
A jelenlegi árak tájékoztató jellegűek, hivatalos ajánlat személyes egyeztetés után.
A műszaki tartalom nem tartalmazza, felár ellenében elérhető:
- tervmódosítás, egyedi tervezés
- lemezalap
- Leier Mesterpanel födém, klímafödém
- 30 foknál nagyobb tetőhajlásszög
- Leier LSK kémény, kandalló
- garázs kivitelezése
- teraszok kivitelezése
- pergola és kocsibeálló
- térkövezés, járdaépítés
- kerítés és kapu kivitelezése
- automata tolókapu vagy szekcionált kapu, kapumotor
- kertépítés (tereprendezés, termőföld, füvesítés, növénytelepítés)
- automata öntözőrendszer telepítése
- házkörüli drénrendszer kialakítása kavics szivárgóval
- külső világítási rendszer
- vízlágyító (berendezés)
- riasztórendszer (komplett rendszer)
- okosotthon-rendszer (komplett rendszer)
- napelemrendszer (komplett rendszer, inverterrel és tárolóval)
- elektromosautó-töltőpont (komplett rendszer)
- medence kivitelezése
KÉRJEN ÁRAJÁNLATOT EGYSZERŰEN!
A *-gal jelölt mezők kitöltése kötelező.

